119B Canberra Crescent - 2 Units for Sale
Map View
We’ve shown you all the matches
Almost there!
Refining your recommendations.
This may take a few seconds...
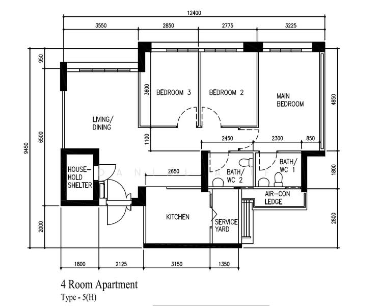
119B Canberra Crescent
119B Canberra Crescent 752119(D27) Sembawang / Yishun
Project details
TypeHDB
PriceS$ 648K - 838K
Completion year2016
Tenure99-year Leasehold
No. of blocks1
No. of floors13
Top facilities
Car park
DeveloperHousing & Development Board (HDB)
Explore PropertyGuru
Properties by ownership









